根据《中华人民共和国城乡规划法》第五十条的规定,我局决定对“岷山厂棚改经适房项目67#、68#楼”总平面图调整事宜举行听证会。现将有关事项公告如下:
一、听证时间
2024年9月中旬(具体时间另行通知)
二、听证地点
天水市自然资源局(具体地点另行通知)
三、听证内容
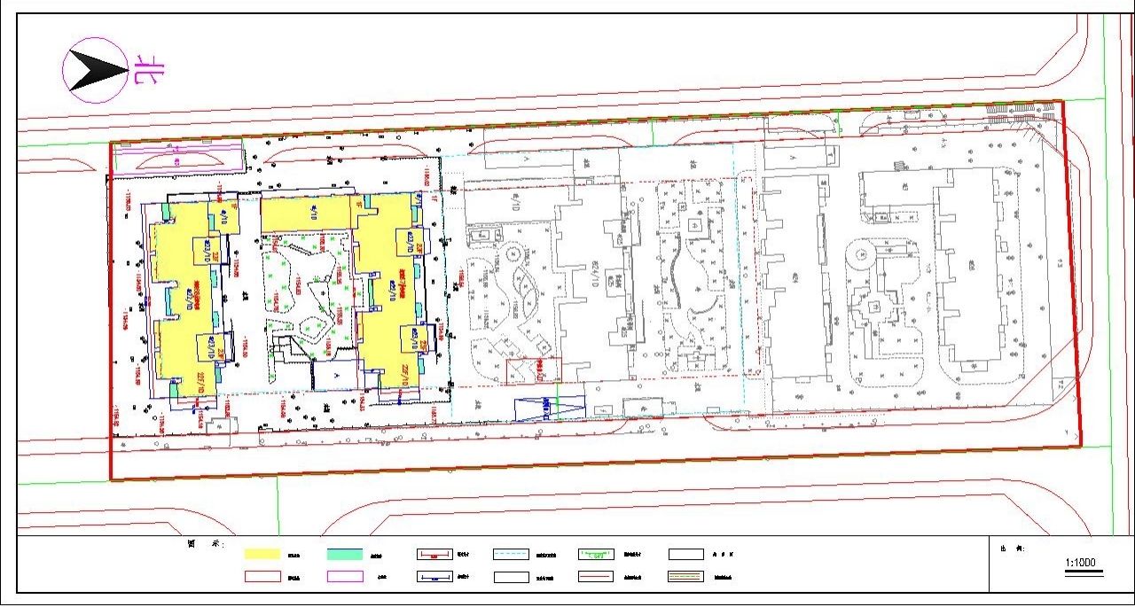
“岷山厂棚改经适房项目67#、68#楼”总平面图进行规划调整。

规划测绘图
调整内容包括:
(一)67#、68#楼增加阳台;
(二)地下车库出入口变更位置。
四、申请参加听证会须知
(一)岷山厂棚改经适房项目67#、68#楼签订购房协议的业主均可申请听证会代表或旁听资格。
(二)2024年9月7日下午6时之前,申请人持居民身份证和购房协议(复印件)向天水市自然资源局规划监督科(八楼812室)提出书面申请或以电子邮件形式提出申请。经审查批准后,方可成为听证会代表。(邮件应包含居民身份证扫描件、购房协议扫描件、申请人联系方式)
(三)指定的听证代表或委托的代表人,申请参加并获批准的听证会代表,逾期不参加本次听证会的,视为对本次听证事项无异议。
特此公告。
联系电话:0938-8623857
邮箱:36010120@qq.com
天水市自然资源局
2024年8月30日