根据《中华人民共和国城乡规划法》第五十条的规定,我局决定对《北园子经济适用住房项目调整总平面图》举行听证会。现将有关事项公告如下:
一、听证时间
2024年8月中旬(具体时间另行通知)
二、听证地点
天水市自然资源局(具体地点另行通知)
三、听证内容
天水保障房有限公司北园子经济适用住房项目调整总平面图事宜。

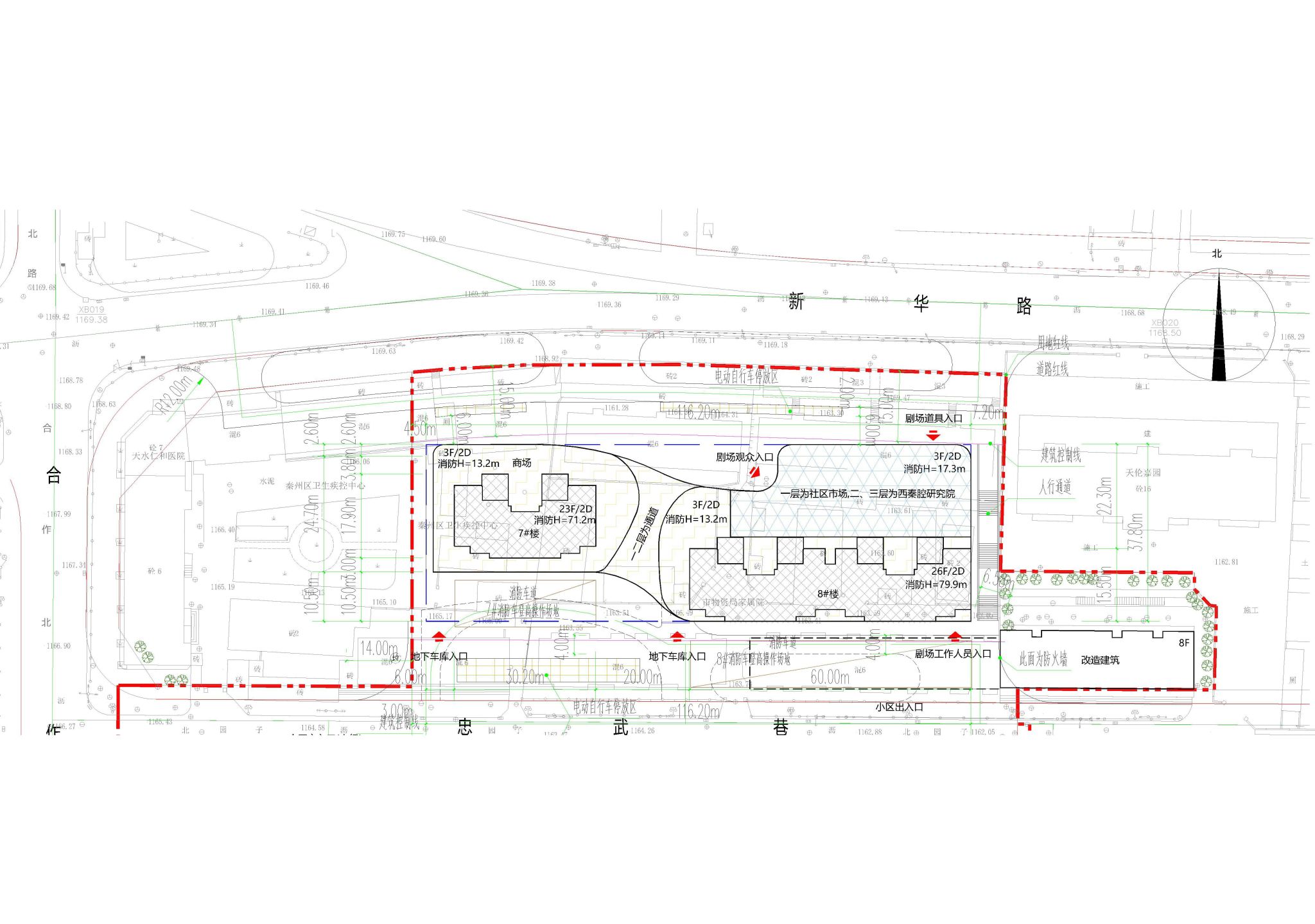
拟调整总平面图

原批准总平面图
将原审批总平面图7#楼去掉一个单元并向东北方向进行移动,原8#楼东南侧8层建筑予以保留。
四、申请参加听证会须知
(一)北园子经济适用住房项目7#、8#住宅楼签订了安置协议或销售合同的业主均可申请听证会代表或旁听资格。
(二)2024年8月8日下午6时之前,申请人持居民身份证和《安置协议》或销售合同向天水市自然资源局建设项目管理科提出书面申请或以电子邮件(邮件应包含居民身份证扫描件、安置协议或销售合同、申请人联系方式)形式提出申请。经审查批准后,方可成为听证会代表。
(三)指定的听证代表或委托的代表人,申请参加并获批准的听证会代表,逾期不参加本次听证会的,视为对本次听证事项无异议。
特此公告。
联系人及电话:任欣 0938-8622035
邮箱:tsjsxmglk@163.com
天水市自然资源局
2024年7月29日